Nhìn hoang sơ, dân dã nhưng vào bên trong, bạn sẽ choáng ngợp với vẻ hiện đại của căn nhà

Pha Lê |

Nhìn từ bên ngoài, căn nhà này mang nếp xưa cũ của kiến trúc nhà cổ Bắc bộ, tuy nhiên, bên trong lại vô cùng hiện đại và tiện nghi.

Nhìn hoang sơ, dân dã nhưng vào bên trong, bạn sẽ choáng ngợp với vẻ hiện đại của căn nhà - Ảnh 1.

Dự án mang tên Nhà của dế có vị trí tại Thạch Thất, ngoại thành Hà Nội. Đây là một dự án được thiết kế bởi 365 Design.

Nhìn hoang sơ, dân dã nhưng vào bên trong, bạn sẽ choáng ngợp với vẻ hiện đại của căn nhà - Ảnh 2.

Diện tích của khu đất là 560m2, trong đó, đất xây dựng là 200m2.

Nhìn hoang sơ, dân dã nhưng vào bên trong, bạn sẽ choáng ngợp với vẻ hiện đại của căn nhà - Ảnh 3.

Rất nhiều ý tưởng xây dựng căn nhà được nhóm thiết kế đưa ra, tuy nhiên, đây là thiết kế mang tính thực tế và phù hợp nhất.

Nhìn hoang sơ, dân dã nhưng vào bên trong, bạn sẽ choáng ngợp với vẻ hiện đại của căn nhà - Ảnh 4.

Ý tưởng của căn nhà là sự gần gũi với thiên nhiên.

Nhìn hoang sơ, dân dã nhưng vào bên trong, bạn sẽ choáng ngợp với vẻ hiện đại của căn nhà - Ảnh 5.

Nhà của dế được thiết kế với không gian mở để tối đa hóa sự kết nối giữa con người và thiên nhiên.

Nhìn hoang sơ, dân dã nhưng vào bên trong, bạn sẽ choáng ngợp với vẻ hiện đại của căn nhà - Ảnh 6.

Nguyên liệu sử dụng là những vật liệu có sẵn từ các nhà cung cấp và nhà máy địa phương...

Nhìn hoang sơ, dân dã nhưng vào bên trong, bạn sẽ choáng ngợp với vẻ hiện đại của căn nhà - Ảnh 7.

...để tạo ra một không gian kiến trúc hiện đại có thể hòa hợp với không gian bao quanh.

Nhìn hoang sơ, dân dã nhưng vào bên trong, bạn sẽ choáng ngợp với vẻ hiện đại của căn nhà - Ảnh 8.

Khu vực đọc sách gần với nhà bếp.

Nhìn hoang sơ, dân dã nhưng vào bên trong, bạn sẽ choáng ngợp với vẻ hiện đại của căn nhà - Ảnh 9.

Ghế ngồi ngoài hiên nhà để gia chủ có thể thư giãn, ngắm quang cảnh xung quanh.

Nhìn hoang sơ, dân dã nhưng vào bên trong, bạn sẽ choáng ngợp với vẻ hiện đại của căn nhà - Ảnh 10.

Khu vực nhà bếp.

Nhìn hoang sơ, dân dã nhưng vào bên trong, bạn sẽ choáng ngợp với vẻ hiện đại của căn nhà - Ảnh 11.

Phòng ngủ.

Nhìn hoang sơ, dân dã nhưng vào bên trong, bạn sẽ choáng ngợp với vẻ hiện đại của căn nhà - Ảnh 12.

Khu vực nhà vệ sinh.

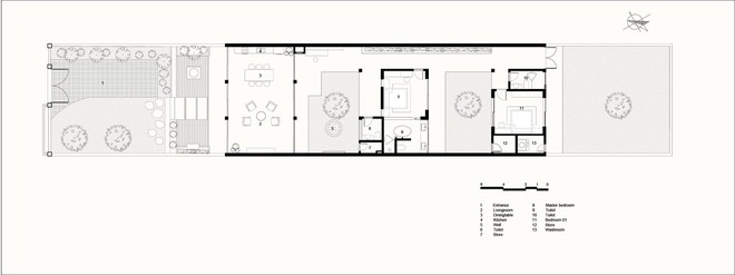
Nhìn hoang sơ, dân dã nhưng vào bên trong, bạn sẽ choáng ngợp với vẻ hiện đại của căn nhà - Ảnh 13.

Sơ đồ bố trí trong căn nhà.

Đường dây nóng: 0943 113 999

Soha
Báo lỗi cho Soha

*Vui lòng nhập đủ thông tin email hoặc số điện thoại