Gia đình chúng tôi ở quê có mảnh đất rộng 100m², vuông vắn, có nhu cầu xây nhà vườn 1 tầng với kinh phí dưới 110 triệu. cho gia đình 7 người (ông bà, 2 đôi vợ chồng và 1 bé 3 tuổi).
Kiến trúc sư tư vấn:
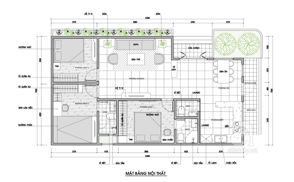
Dựa theo những thông tin mà bạn cung cấp về phong cách thiết kế, màu sắc và nhu cầu sử dụng của gia đình, chúng tôi xin đưa ra phương án mặt bằng tư vấn thiết kế như sau :
Mặt bằng tư vấn nội thất.
Từ sảnh chính đi vào là khu vực bếp nấu kết hợp phòng ăn được ngăn cách bằng quầy bar nhỏ thông thoáng. Nơi đây được thiết kế nhiều cửa sổ mở ra các hướng và cửa phụ mở ra khu sơ chế ở sân sau, giúp không gian trở nên thoáng đáng và đón được nhiều ánh sáng mặt trời.
Phòng khách được bố trí ở trung tâm ngôi nhà. Không gian được thiết kế theo phong cách hiện đại với nội thất được phối màu trẻ trung làm cho không gian trở nên sống động. Ngoài ra không gian sinh hoạt chung còn được bố trí một phòng vệ sinh chung.
Không gian bếp - phòng ăn thoáng rộng có cửa mở ra sân sau xanh mát.
Không gian bếp với màu sắc trắng làm chủ đạo.
Bộ bàn ăn 6 ghế nhỏ gọn.
Phòng khách được bài trí gọn gàng, sang trọng với điểm nhấn là sofa màu tím than.
Kệ ti vi được thiết kế độc đáo, bắt mắt.
Không gian riêng được chia làm 3 phòng ngủ bao gồm : phòng ông bà, phòng vợ chồng anh chị có cháu nhỏ và đôi vợ chồng trẻ. Nội thất các phòng ngủ đều được chọn với gam màu nhẹ nhàng, trang nhã. Phòng ngủ cho 2 đôi vợ chồng có vệ sinh khép kín và được thiết kế đầy đủ tiện nghi, thoải mái. Cửa sổ kính cường lực giúp lấy sáng, thông gió cho căn phòng.
Phòng ngủ của hai vợ chồng trẻ có thiết kế sang trọng với đầy đủ tiện ích.

Phòng ngủ gia đình có cháu nhỏ được thiết kế hệ giường phản giúp tiết kiệm diện tích.
Hệ tủ quần áo, bàn phấn kết hợp bàn làm việc.
Phòng ngủ ông bà với nội thất nhẹ nhàng.
Phòng không quá lớn nên bố trí một kệ ti vi nhỏ treo tường.
Phòng không quá lớn nên bố trí một kệ ti vi nhỏ treo tường.
Báo giá sơ bộ.
Hy vọng với phương án bố trí của Nhà Hay sẽ đáp ứng được tiện nghi cũng như nhu cầu sinh hoạt của bạn và gia đình.