Lạ mắt với ngôi nhà 5 tầng của vợ chồng giáo viên ở Bắc Ninh

Pha Lê |

Ngôi nhà được thiết kế cho cặp vợ chồng trẻ và cô con gái 6 tuổi của họ. Cặp vợ chồng đều là giáo viên.

Lạ mắt với ngôi nhà 5 tầng của vợ chồng giáo viên ở Bắc Ninh - Ảnh 1.

Căn nhà 5 tầng này nằm trong khu vực đông dân cư ở Bắc Ninh. Dự án có diện tích 76m2 (6,3m x 12m) và mặt tiền ở phía Bắc. Đây là căn nhà ống điển hình của người Việt Nam với nhiều điểm khá hạn chế.

Lạ mắt với ngôi nhà 5 tầng của vợ chồng giáo viên ở Bắc Ninh - Ảnh 2.

Đầu tiên là mặt tiền là điểm duy nhất được lộ ra ngoài của căn nhà. Thứ 2, chiều sâu của căn nhà khá là dài, 12m. Đây là một thách thức lớn đối với đội ngũ thiết kế.

Lạ mắt với ngôi nhà 5 tầng của vợ chồng giáo viên ở Bắc Ninh - Ảnh 3.

Ngoài ra, các kiến trúc sư cần tìm một giải pháp thích hợp cho các vấn đề về tiếng ồn, khói, an ninh và quyền riêng tư. Chính vì vậy, việc tiếp cận với dự án cần phải tỉ mỉ để giảm thiểu sai sót trong quá trình thiết kế.

Lạ mắt với ngôi nhà 5 tầng của vợ chồng giáo viên ở Bắc Ninh - Ảnh 4.

Ngôi nhà được thiết kế cho một cặp vợ chồng trẻ và cô con gái 6 tuổi của họ. Cặp vợ chồng đều là giáo viên và họ muốn, ngoài những không gian riêng tư thì còn có một số phòng phục vụ cho công việc giảng dạy của họ.

Lạ mắt với ngôi nhà 5 tầng của vợ chồng giáo viên ở Bắc Ninh - Ảnh 5.

Chính về thế, nhóm thiết kế đã tính toán để gia tăng sự kết nối giữ không gian để ở và không gian dành cho việc dạy học.

Lạ mắt với ngôi nhà 5 tầng của vợ chồng giáo viên ở Bắc Ninh - Ảnh 6.

Yêu cầu của nhà đầu tư là tạo ra một không gian sống hài hòa giữa sống và giảng dạy. Tất cả các không gian nên tận dụng tối đa các yếu tố tự nhiên như nắng và gió.

Lạ mắt với ngôi nhà 5 tầng của vợ chồng giáo viên ở Bắc Ninh - Ảnh 7.

Bên cạnh đó, cần phải có sự kết nối giữa các không gian và sàn nhà, đồng thời có cây xanh bên trong tòa nhà. Quan trọng nhất, đó là mang thêm cây xanh vào tòa nhà.

Lạ mắt với ngôi nhà 5 tầng của vợ chồng giáo viên ở Bắc Ninh - Ảnh 8.

Với dự án này, do mặt tiền rộng và độ sâu hạn chế nên việc bố trí nhà được chia thành các khu vực chính và phụ trợ nhằm tiết kiệm không gian.

Lạ mắt với ngôi nhà 5 tầng của vợ chồng giáo viên ở Bắc Ninh - Ảnh 9.

Khu vực chức năng chính bao gồm phòng khách, bàn thờ, phòng ngủ, phòng học và phòng đa chức năng, trong khi khu vực phụ trợ có cầu thang, phòng lưu trữ và nhà vệ sinh.

Lạ mắt với ngôi nhà 5 tầng của vợ chồng giáo viên ở Bắc Ninh - Ảnh 10.

Cầu thang được bố trí gọn gàng trên bức tường bên trái của ngôi nhà.

Lạ mắt với ngôi nhà 5 tầng của vợ chồng giáo viên ở Bắc Ninh - Ảnh 11.

Ở tầng đầu tiên, cầu thang Zig Zag bằng thép không gỉ được sử dụng để có thể nhìn xuyên qua để tăng kết nối trong không gian, mở rộng diện tích của tầng một và góp phần làm nổi bật phòng khách.

Lạ mắt với ngôi nhà 5 tầng của vợ chồng giáo viên ở Bắc Ninh - Ảnh 12.

Không gian phía sau bên cạnh cầu thang kết hợp với bức tường gạch có thể cho gió và ánh sáng xuyên qua nhưng vẫn đảm bảo sự riêng tư và an toàn cho ngôi nhà.

Lạ mắt với ngôi nhà 5 tầng của vợ chồng giáo viên ở Bắc Ninh - Ảnh 13.

Mọi người có thể cảm nhận được nắng, mưa, gió và cây cối khi di chuyển trên cầu thang và sảnh của các tầng.

Lạ mắt với ngôi nhà 5 tầng của vợ chồng giáo viên ở Bắc Ninh - Ảnh 14.

Mặt tiền và ban công đua ra khỏi các tầng, dạng so le theo chiều dọc tạo sự chuyển động của ngôi nhà và làm điểm nhấn khi nhìn từ các hướng khác nhau.

Lạ mắt với ngôi nhà 5 tầng của vợ chồng giáo viên ở Bắc Ninh - Ảnh 15.

Đây được coi là không gian đệm giúp ngôi nhà tránh được tiếng ồn, khói, ánh sáng mặt trời và đảm bảo sự riêng tư cần thiết cho ngôi nhà.

Lạ mắt với ngôi nhà 5 tầng của vợ chồng giáo viên ở Bắc Ninh - Ảnh 16.
Lạ mắt với ngôi nhà 5 tầng của vợ chồng giáo viên ở Bắc Ninh - Ảnh 17.
Lạ mắt với ngôi nhà 5 tầng của vợ chồng giáo viên ở Bắc Ninh - Ảnh 18.
Lạ mắt với ngôi nhà 5 tầng của vợ chồng giáo viên ở Bắc Ninh - Ảnh 19.
Lạ mắt với ngôi nhà 5 tầng của vợ chồng giáo viên ở Bắc Ninh - Ảnh 20.
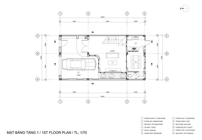
Lạ mắt với ngôi nhà 5 tầng của vợ chồng giáo viên ở Bắc Ninh - Ảnh 21.

Sơ đồ bố trí trong căn nhà.

Đường dây nóng: 0943 113 999

Soha
Báo lỗi cho Soha

*Vui lòng nhập đủ thông tin email hoặc số điện thoại