Mãn nhãn với tòa văn phòng "nhiệt đới hiện đại" ở Bình Thạnh trên báo Mỹ

Pha Lê |

Tòa nhà văn phòng này vừa được tạp chí kiến trúc nổi tiếng của Mỹ giới thiệu đến đông đảo bạn đọc trên thế giới.

Mãn nhãn với tòa văn phòng nhiệt đới hiện đại ở Bình Thạnh trên báo Mỹ - Ảnh 1.

Tòa nhà này có địa chỉ tại Lê Quang Định, phường 5, Bình Thạnh, Tp.Hồ Chí Minh.

Mãn nhãn với tòa văn phòng nhiệt đới hiện đại ở Bình Thạnh trên báo Mỹ - Ảnh 2.

Là một đô thị ồn ào và náo nhiệt, dự án cố gắng truyền tải cảm giác "nhiệt đới hiện đại" cho các thành viên làm việc tại đây.

Mãn nhãn với tòa văn phòng nhiệt đới hiện đại ở Bình Thạnh trên báo Mỹ - Ảnh 3.

Ngôi nhà này được chia thành 3 tầng và 1 tầng hầm.

Mãn nhãn với tòa văn phòng nhiệt đới hiện đại ở Bình Thạnh trên báo Mỹ - Ảnh 4.

Tại tầng trệt, nó có một phòng họp, chỗ đậu xe, phòng máy và một khu vườn.

Mãn nhãn với tòa văn phòng nhiệt đới hiện đại ở Bình Thạnh trên báo Mỹ - Ảnh 5.

Ngay lối vào, khu vườn như mời gọi mọi người bước vào trong. Khoảng sân này bao quanh ngôi nhà tạo ra khoảng trống ngăn cách căn nhà với nhịp sống hối hả của thành phố.

Mãn nhãn với tòa văn phòng nhiệt đới hiện đại ở Bình Thạnh trên báo Mỹ - Ảnh 6.

Không gian chia sẻ mở nằm ở góc của khu vườn, như là lời nhắc nhở về lối sống vội vàng của người dân. Nó cũng là không gian để dành cho giờ ăn trưa cho những người làm việc tại môi trường "nhiệt đới hiện đại".

Mãn nhãn với tòa văn phòng nhiệt đới hiện đại ở Bình Thạnh trên báo Mỹ - Ảnh 7.

Từ sân trong, những vị khách có thể trực tiếp tăm văn phòng trên lầu thông qua cầu thang mở.

Mãn nhãn với tòa văn phòng nhiệt đới hiện đại ở Bình Thạnh trên báo Mỹ - Ảnh 8.

Trong khi đó, cầu thang nội bộ thì phục vụ cho những công nhân viên làm việc trong tòa nhà.

Mãn nhãn với tòa văn phòng nhiệt đới hiện đại ở Bình Thạnh trên báo Mỹ - Ảnh 9.

Màu trắng, xám được sử dụng là tông màu chính ở cả trong vào ngoài của tòa nhà...

Mãn nhãn với tòa văn phòng nhiệt đới hiện đại ở Bình Thạnh trên báo Mỹ - Ảnh 10.

...tạo cảm giác sang trọng, gần gũi và ấm áp.

Mãn nhãn với tòa văn phòng nhiệt đới hiện đại ở Bình Thạnh trên báo Mỹ - Ảnh 11.

Tòa nhà sử dụng nhiều kính chịu lực tở toàn bộ cắc mặt nhằm tận dụng ánh sáng tự nhiên, giảm thiểu điện năng cũng như góp phần giảm thải khí CO2 ra ngoài môi trường sống.

Mãn nhãn với tòa văn phòng nhiệt đới hiện đại ở Bình Thạnh trên báo Mỹ - Ảnh 12.
Mãn nhãn với tòa văn phòng nhiệt đới hiện đại ở Bình Thạnh trên báo Mỹ - Ảnh 13.
Mãn nhãn với tòa văn phòng nhiệt đới hiện đại ở Bình Thạnh trên báo Mỹ - Ảnh 14.
Mãn nhãn với tòa văn phòng nhiệt đới hiện đại ở Bình Thạnh trên báo Mỹ - Ảnh 15.

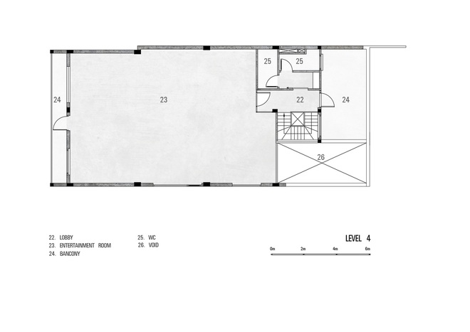
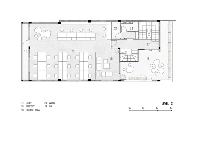
Sơ đồ bố trí trong tòa nhà.

Đường dây nóng: 0943 113 999

Soha
Báo lỗi cho Soha

*Vui lòng nhập đủ thông tin email hoặc số điện thoại